La Fabrique des Arts 3.0Read more
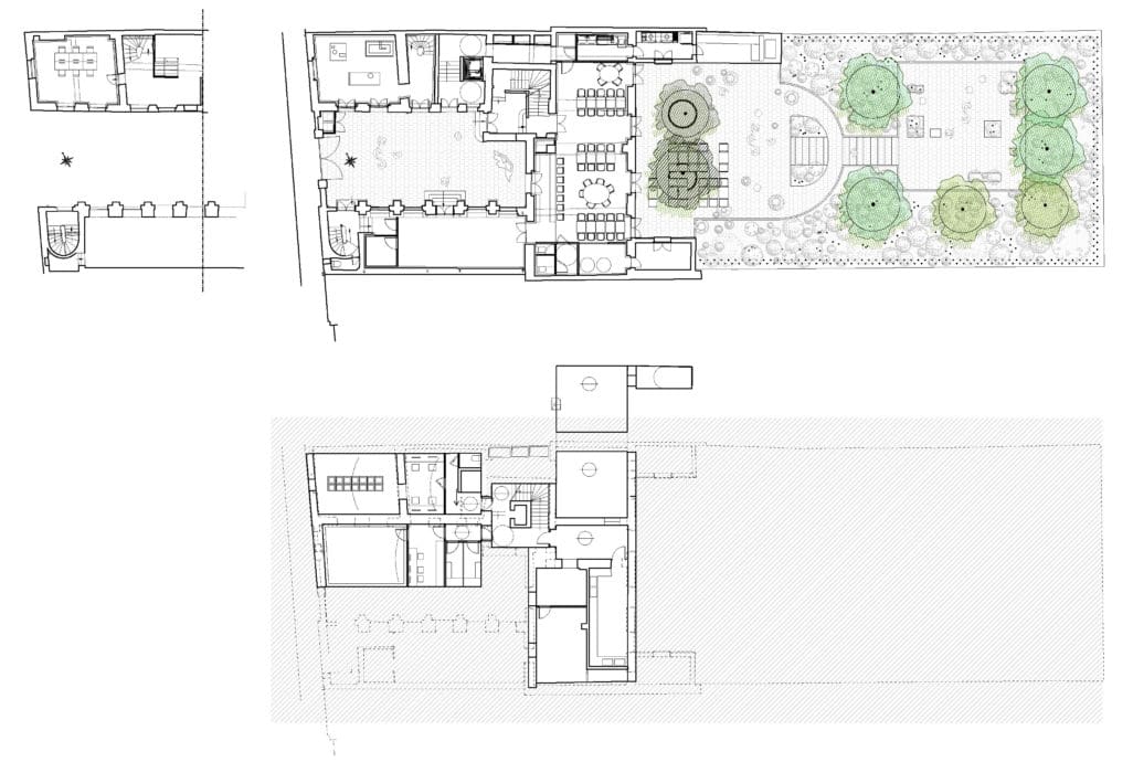
La Fabrique des arts 3.0 est un lieu de création artistique constitué d’espaces de travail individuels et collectifs combinés à un ensemble de studios – son, image, vidéo, réalité virtuelle, fabrication numérique, assemblage. Des espaces sont prévus pour accueillir les séminaires d’entreprises et l’ensemble du rez-de-chaussée est ouvert au public. On y trouve une galerie d’exposition, un fablab pour les habitants du quartier et les écoles, ainsi qu’une brasserie qui commande un vaste jardin.
L’équipe a développé ce programme par rapport à la culture du site, son histoire, sa sociologie, avec des usages qui intègrent les lieux, respectent son organisation et la manière dont on y circule. Ensuite, nous nous sommes imprégnés des lieux de l’art et de la fabrication qui sont constitués d’espaces neutres, fonctionnels, et flexibles.
La Fabrique des arts 3.0 accueillera chaque année des artistes en résidence qui pourront s’appuyer sur un écosystème d’artisans, d’architectes, de designers pour les accompagner dans leurs projets de conception d’œuvre d’art numérique. C’est aussi un lieu de pratique et de transmission qui a pour objectif de s’adresser à tous. Les parisiens pourront ainsi profiter d’un programme d’initiations et de formations, flâner, manger, fabriquer, … Les galeries seront invitées à intégrer un incubateur de la création artistique et les entreprises, dans une logique de team building, pourront profiter d’une immersion dans les nouvelles fabrications.
Il s’agit ici de créer un équipement d’un nouveau genre proposant un écosystème global et empathique articulant dans une même synergie des artistes, des galeristes, des publics divers ainsi que des mécènes et collectionneurs dont la vocation serait de stimuler l’éclosion des artistes numériques français. Tout cela dans un beau lieu, inspirant et convivial.
FICHE TECHNIQUE
–
Lieu
48 rue de Sévigné, Paris 3e
Maîtrise d’ouvrage
Emerige
Équipe de maîtrise d’œuvre
BiecherArchitectes, Christian Biecher assisté de / assisted by Eleonora Boncompagni architecte / architect et Frédérique Didier, architecte en chef des monuments historiques
Bureaux d’études
Lignes, Oasiis, Somete, Artelia, Delporte Aumond Laigneau (DAL), MDS, Make Ici, Scintillo SAS, Cueillette Urbaine
Programme
Reinventer Paris II – Atelier des Beaux-Arts : réhabilitation d’un hôtel particulier du XVIIe siècle à usage d’atelier d’artistes
Surface
1 060 m²